Parktown-Residence-Logo

Parktown Residence
New Launch at Tampines
By UOL Group

Parktown-Residence-Swimming-Pool
Parktown-Residence-Swimming-Pool

Units Mix

Parktown Residence new launch has a diverse floor plans of unit types to fit your selection!

  • 1+Study Bedroom
  • 2 Bedroom
  • 3 Bedroom
  • 4 Bedroom
  • 5 Bedroom

Tampines Avenue 11 Site – Landmark GLS Tender in District 18

The Tampines Avenue 11 GLS site is set to become one of Singapore’s most transformative mixed-use developments, following an exceptionally strong land tender that underscored its immense potential. The 99-year leasehold plot, spanning 545,314 sq ft in the heart of Tampines North, attracted significant interest from major developers, with a total of three bids submitted. A powerhouse consortium comprising UOL Group, Singapore Land (SingLand) and CapitaLand Development emerged victorious with a compelling top bid of $1.206 billion, translating to $885 psf per plot ratio (psf ppr) which is a remarkable 13.9% premium over the second-highest bidder from Allgreen Properties.

Such a decisive winning margin signals the developers’ confidence in the Tampines Avenue 11 GLS site, an increasingly rare opportunity in District 18 to shape a landmark mixed-use development with built-in transportation, lifestyle and community conveniences. This future integrated project will feature direct access to a new bus interchange, alongside a community club, a vibrant hawker centre, and a curated selection of commercial and retail offerings all thoughtfully planned to serve the rapidly expanding Tampines North population.

According to the joint venture arrangement, CapitaLand Development will hold a 50% stake while UOL Group and SingLand will jointly manage the remaining half. Their combined expertise promises a development of exceptional quality and urban integration. Early plans indicate the creation of approximately 1,190 new homes, positioned directly within an emerging lifestyle hub making this one of the most highly anticipated residential launches in the East.

Tampines-Ave-11-GLS-Land-Site

Tampines New Launch by UOL Group

Parktown Residence rises as Tampines’ most compelling new launch, delivering the unique advantage of being directly linked to the future Tampines North MRT station and fully integrated with the Tampines North Bus Interchange. This 99-year leasehold mixed-use development by UOL Group stands at the crossroads of connectivity and lifestyle, complete with its own community club, hawker centre and retail offerings that bring an unmatched level of convenience and vitality to residents and visitors alike.

Set within the dynamic growth zone of Tampines North, this landmark project presents investors and homebuyers with a rare opportunity to be part of Tampines’ first integrated transport hub development. With the Cross Island Line improving accessibility nationwide and new commercial hubs emerging nearby, Parktown Residence is poised for strong capital appreciation and sustained rental demand.

The diverse mix of 1+Study to 5-Bedroom units caters to young professionals, families upgrading from HDB homes and private property owners seeking a future-ready investment anchored by MRT connectivity and daily amenities right below their home.

Launches of this scale and integration are exceptionally rare, and units in such developments are typically snapped up rapidly due to their long-term desirability. Parktown Residence is set to become one of the most significant new launches in District 18, and buyers who act early stand to secure the highest potential value. Make your move now and position yourself at the heart of Tampines’ transformation.

Contact us today to find out more via Inquiry Form below and make Parktown Residence your new home.

Get Latest Updates via Inquiry Form below for Parktown Residence.

Direct Link to Tampines North MRT Station

Parktown Residence sets a new benchmark for connectivity and convenience in Tampines Avenue 11, offering residents unmatched accessibility right at their doorstep. This landmark mixed-use development is directly connected to the upcoming Tampines North MRT station on the Cross Island Line that providing seamless, weather-protected access to the MRT without ever leaving the development.

 

Beyond rail connectivity, Parktown Residence also features an integrated Tampines North Bus Interchange, giving homeowners unparalleled ease in commuting across the East and the rest of Singapore. Whether you're heading to work, school, or leisure destinations, every journey becomes effortless with multiple transport modes built directly into the development.

 

Parktown Residence redefines modern urban living with its rare transit-integrated design and exceptional location advantages.

 

Register your interest today and secure your opportunity to experience unparalleled luxury, convenience, and connectivity at Parktown Residence.

Facilities Overview at Parktown Residence

At Parktown Residence by UOL Group, residents can look forward to an exceptional suite of lifestyle facilities designed to elevate everyday living within this vibrant mixed-use development in Tampines North. Every space has been thoughtfully curated to create a sanctuary of wellness, recreation and community making Parktown Residence one of the most desirable District 18 condos for families, upgraders and investors seeking both comfort and convenience.

The heart of the development features a stunning Swimming Pool and an inviting Wellness Pool, offering residents the luxury of unwinding amidst beautifully landscaped surroundings. Whether you prefer energising laps to start the day or quiet moments of relaxation after work, these water features provide a tranquil retreat right at home. Surrounding the pool deck, lush greenery and intentionally crafted spaces create a soothing environment that enhances the overall resort-style ambience of this new launch in Tampines.

Fitness enthusiasts will find their perfect rhythm along the scenic Forest Jogging Trail, a rarity among mixed-use developments in the East. This serene outdoor trail allows residents to escape into nature without leaving the estate. These facilities offering a refreshing alternative to busy public parks. Complementing this is a well-equipped Gym, a versatile Dance Room/Yoga Studio, and a spacious Multipurpose Court, providing endless opportunities for strength training, cardio workouts, group exercises and recreational sports.

Families will appreciate the dedicated zones designed for children, including a delightful Kids’ Pool, a Kids’ Playground, and an engaging Kids’ Entertainment Room that encourages exploration, creativity and safe play. These thoughtfully crafted spaces ensure that young residents enjoy an enriching lifestyle filled with fun and learning, making Parktown Residence one of the most family-friendly developments in the region.

For social gatherings and quality time with loved ones, the development offers beautifully appointed BBQ Pavilions and the elegant Gastronomy Pavilion which are ideal venues for weekend cookouts, celebrations or intimate dinners under the stars. Those who work from home or need a professional environment can enjoy the modern Co-Working Lounges, designed to support productivity and collaboration with comfort and convenience. In addition, the stylish Function Rooms provide flexible spaces for hosting events, meetings or private gatherings, enhancing the overall live-work-play ecosystem within the development.

What sets Parktown Residence facilities apart is how seamlessly they integrate into the lifestyle vision of this landmark project. As part of Tampines’ first integrated transport hub development that it is complete with direct MRT connectivity, an integrated bus interchange, retail amenities, a community club and a hawker centre that residents enjoy unmatched accessibility while still indulging in the luxury of resort-inspired facilities within their own private enclave.

Experience a new level of elevated living where wellness, recreation and convenience come together harmoniously. Parktown Residence by UOL Group is more than a home, it is a complete lifestyle destination crafted for those who seek the very best in urban living.

Book Your Parktown Residence Viewing Appointment Now!

Why Invest in Parktown Residence New Launch?

- Integrated Transport Hub: Direct link to Tampines North MRT Station and bus interchange for unrivalled connectivity.

- Comprehensive Amenities: Community club, hawker center, shopping mall, and supermarkets within the development.

- Diverse Residential Options: From cozy 1-bedroom+Study units to spacious 5-bedroom homes, catering to all lifestyles.

- Renowned Developer: Quality and reliability from UOL Group Limited.

- Strategic Location: Nestled in the mature town of Tampines, surrounded by existing amenities, schools, and recreational facilities.

Get in touch now via Inquiry Form below to receive floor plan and price list for Parktown Residence!

Development Key Features at Parktown Residence

Established Developer

Discover exceptional quality and innovative design with UOL Group Limited, a renowned leader in the real estate industry. With a proven track record, UOL delivers trusted developments that combine cutting-edge innovation, timeless appeal, and superior craftsmanship for modern living.

Diverse Unit Selection

Parktown Residence features 1,193 thoughtfully designed residential units, offering a diverse range of layouts from 1-Bedroom + Study to spacious 5-Bedroom options. These homes are perfect for individuals, couples, and families of all sizes, catering to different lifestyles and needs.

Transportation

Seamlessly integrated with a well-connected bus interchange and providing direct access to Tampines North MRT station, Parktown Residence ensures effortless connectivity, offering residents and visitors unparalleled convenience for daily commutes and easy access to destinations across Singapore.

Education

The development is strategically located within 1km of several reputable public schools and an international campus, offering families convenient access to quality education options for children of all ages, ensuring a well-rounded and enriching learning environment.

Amenities

Parktown Residence offers a truly comprehensive living experience, featuring a community club for social activities, a hawker center with diverse dining options, a shopping mall for retail therapy, and supermarkets for daily essentials—all conveniently located within the development for effortless access.

Potential Investment

Parktown Residence presents a prime investment opportunity with exceptional growth potential, being Tampines' first-ever integrated development. Combining residential, retail, and transportation hubs, it offers unparalleled convenience and value, making it a highly desirable choice for homebuyers and investors alike.

Prime Location at Tampines Ave 11

Location Advantages of Parktown Residence

Excellent Connectivity:
Enjoy seamless travel with direct access to Tampines North MRT station and integration with a bus interchange. Major expressways like PIE and TPE are also easily accessible, ensuring effortless journeys across Singapore.

Proximity to Lifestyle Amenities:
Experience ultimate convenience with Tampines Mall, Century Square, and Tampines Regional Library just moments away. Indulge in shopping, dining, and leisure activities without the hassle of long commutes.

Educational Hub:
Families will appreciate the proximity to renowned educational institutions such as Temasek Polytechnic, providing top-tier education opportunities. International schools nearby cater to diverse educational needs, ensuring a well-rounded environment for students of all ages.

Green Spaces and Recreation:
Enjoy a balanced lifestyle with nearby parks and recreational facilities, perfect for outdoor enthusiasts and families looking to unwind amidst lush greenery.

Connect with Community:
Parktown Residence is more than just a place to live—it’s a community hub with easy access to healthcare facilities, dining options, and cultural attractions, fostering a vibrant and connected neighbourhood.

Showflat Viewing at Parktown Residence

Parktown-Residence-Pool-&-Club-House

Book An Appointment

Don't miss out on the opportunity to own a unit at Parktown Residence.

Register your interest today and be among the first to receive updates on this exciting new launch.

Location Map of Parktown Residence

Project Factsheet of Parktown Residence

1,193 units spread across 12 blocks with varying heights (6–12 storeys).

Residential and commercial components include a shopping mall, supermarket, community club, and hawker center.

PROJECT FACTSHEETDESCRIPTION
Name:Parktown Residence
Type:Mixed-Use Development
Tenure:99 Years Leasehold
Developer:UOL, Singapore Land, CapitaLand
Address:Tampines Street 62
District:18
Site Area:50,679 sqm
Residential Units1193
Nos. of Storey:12 Blocks of 19 Storey
Units Type:1+Study to 5 Bedroom
Est. TOP:End 2028

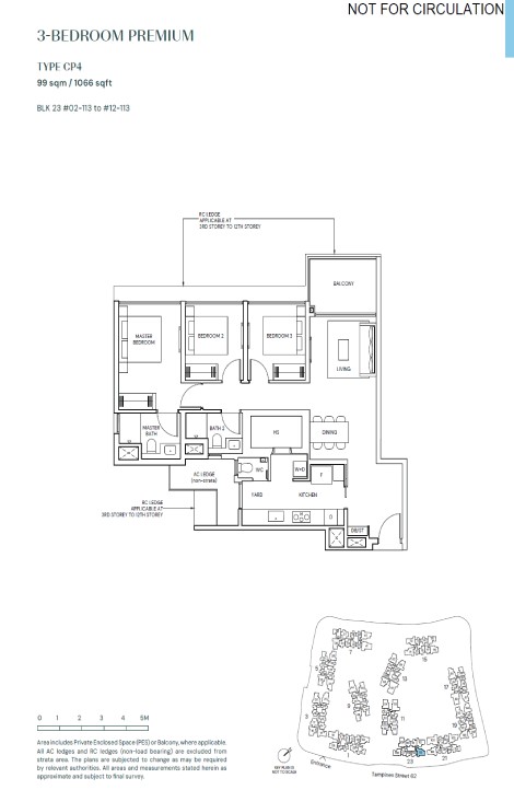
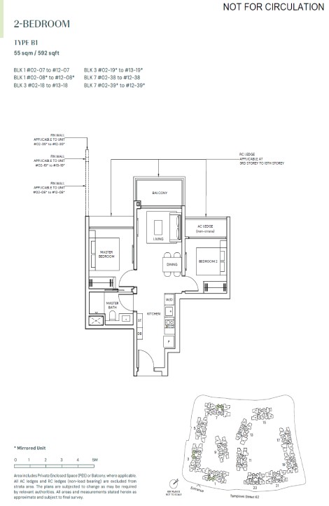
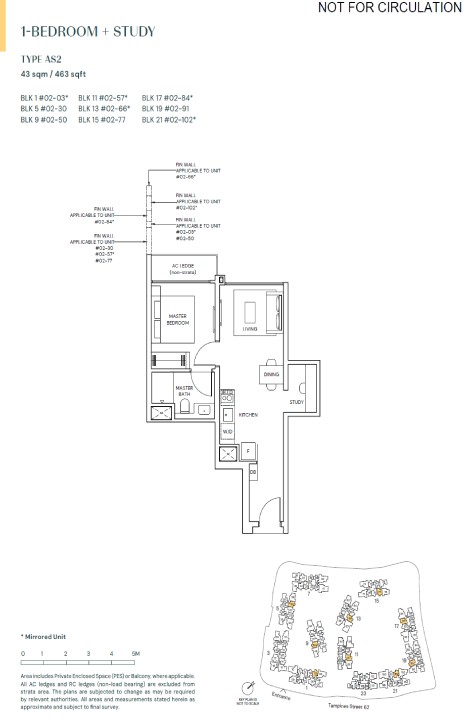
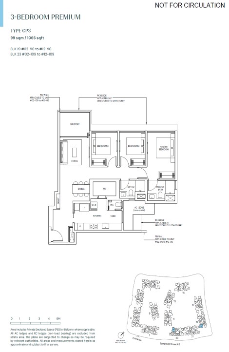
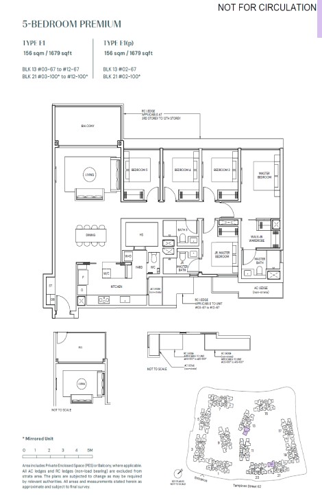
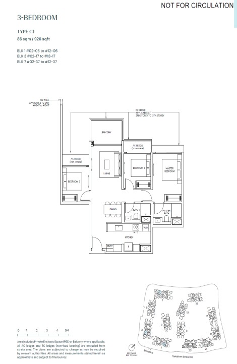
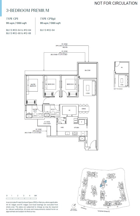
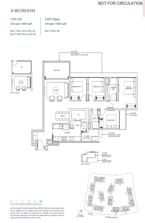
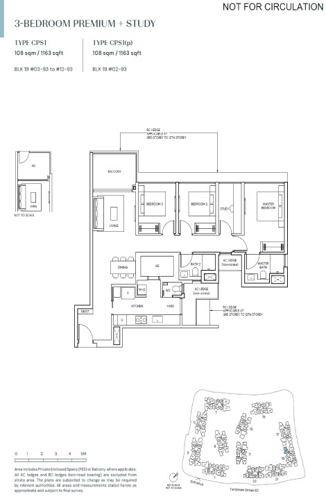
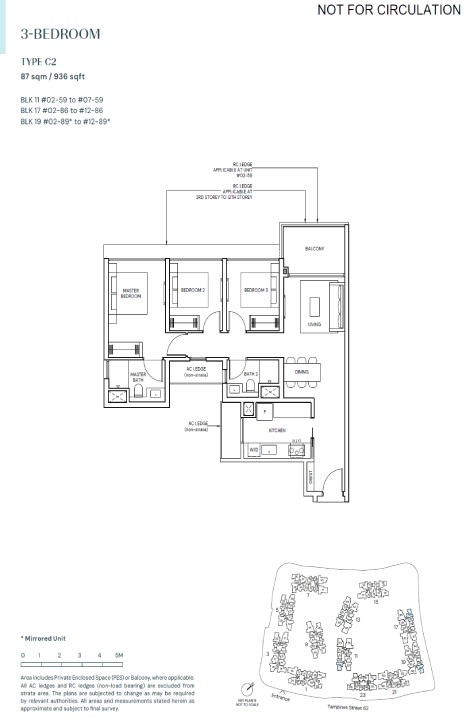
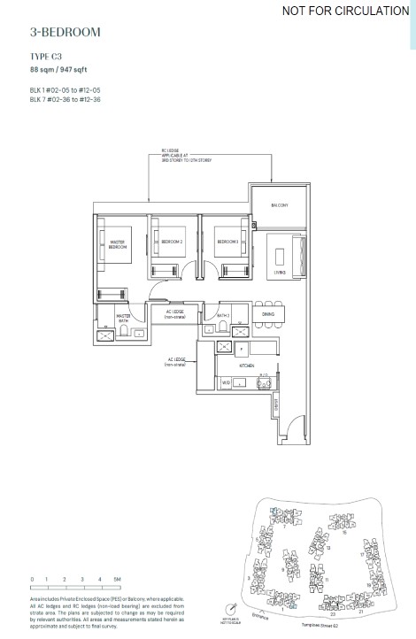
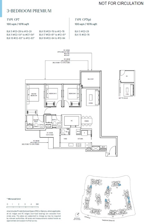
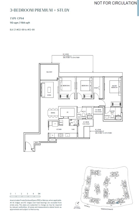
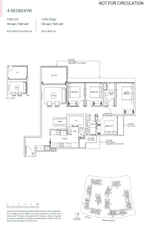
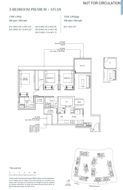
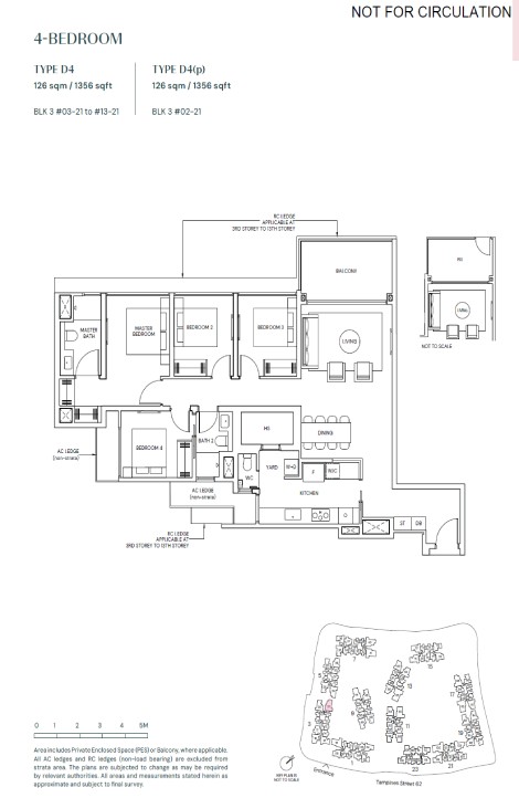
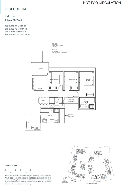
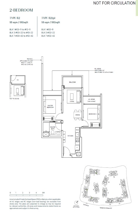
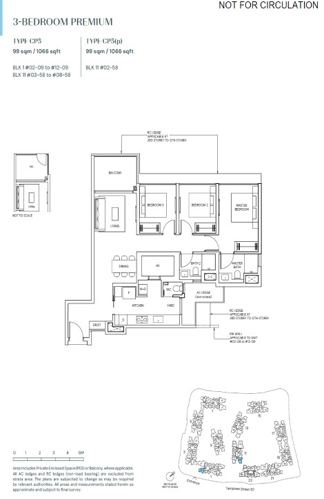
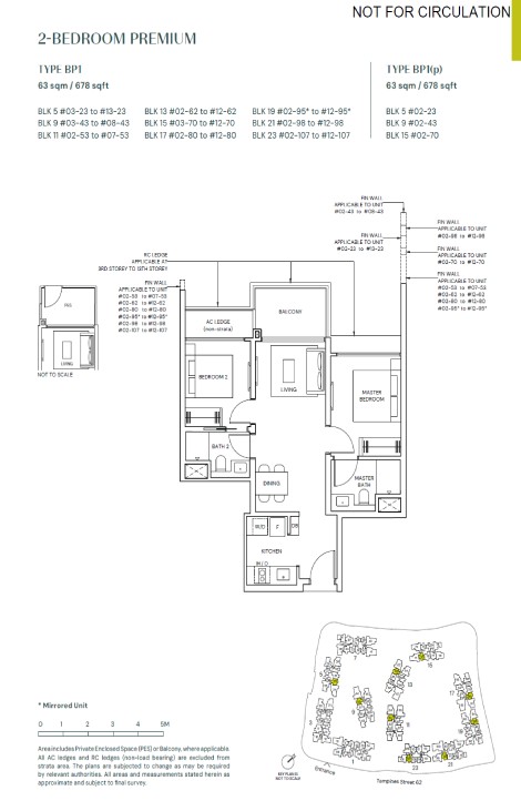
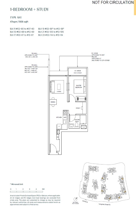
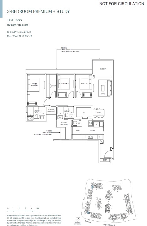
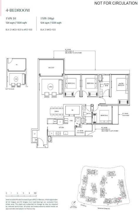
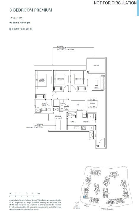
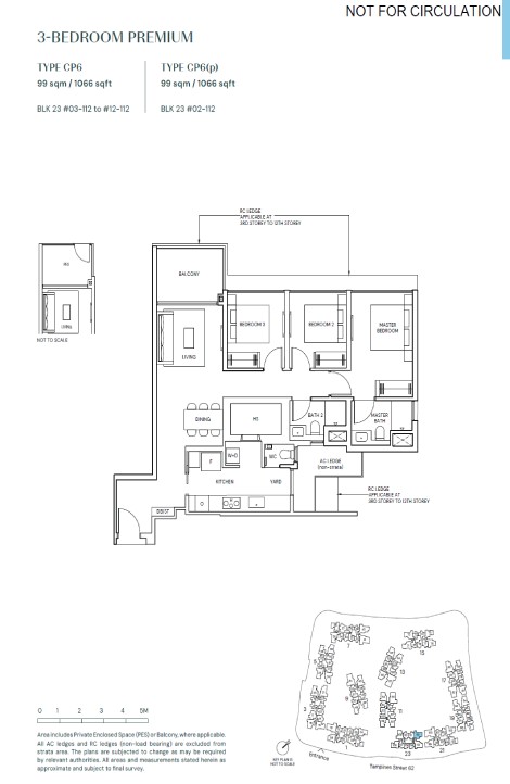
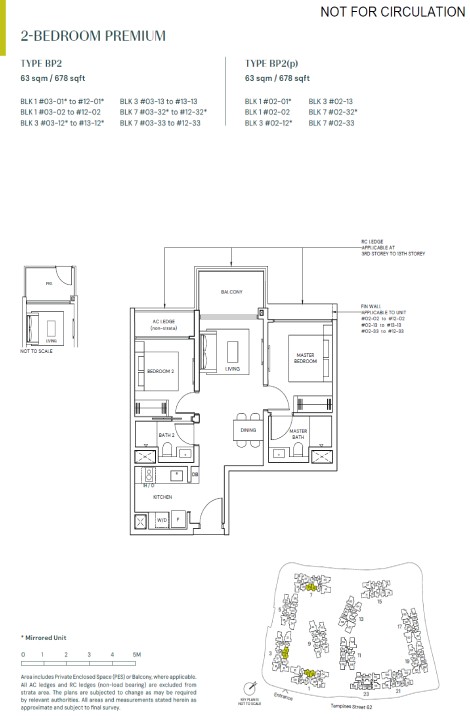
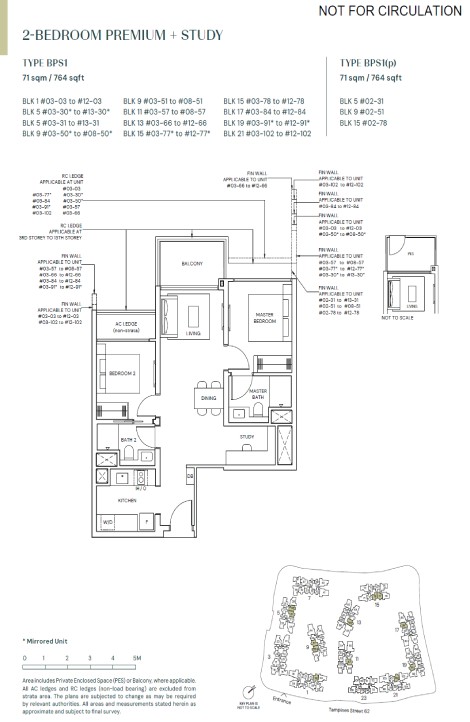
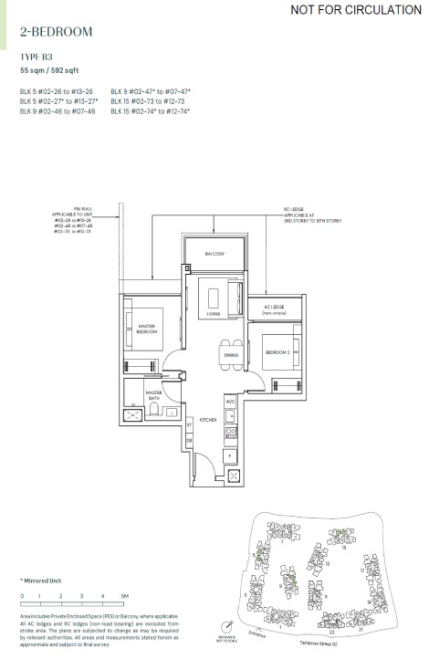
Floor Plan & Price List at Parktown Residence

Thoughtfully Crafted Homes for Every Lifestyle at Parktown Residence!

Parktown Residence, the highly anticipated mixed-use development by UOL Group Limited.

With a limited selection of premium units, discover a floor plan curated for every need:

• 1 Bedroom + Study – Rare affordable entry into a vibrant integrated development.

• 2 Bedroom & 2 Bedroom + Study – Smartly designed for comfort and functionality.

• 3 Bedroom & 3 Bedroom + Study – Family-sized layouts with optimal use of space.

• 4 Bedroom – Elegant homes for families seeking more room to grow.

• 5 Bedroom – Exclusive large-format units for unparalleled luxury.

Don’t miss your chance to secure a beautifully designed home in a mixed-use development by UOL Group Limited, where lifestyle, convenience, and value meet seamlessly!

Unit Types

UNIT TYPESTOTAL UNITSAREA (sqft)
1 Bedroom + Study73463 to 506
2 Bedroom160592
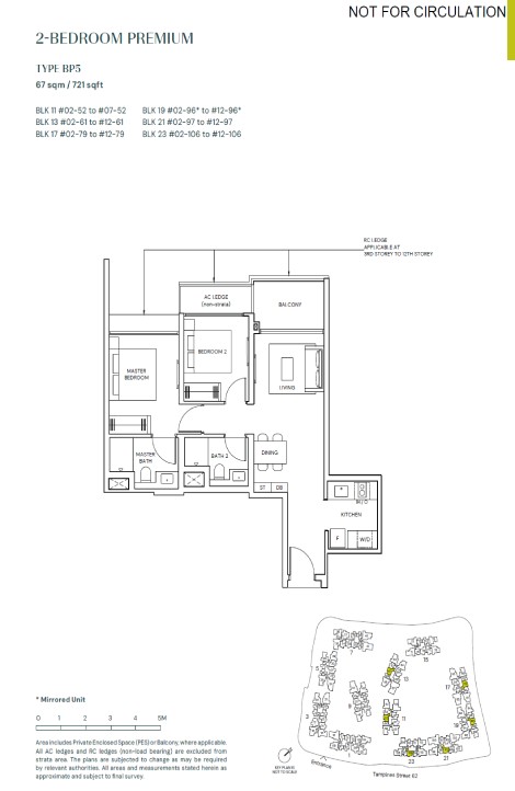
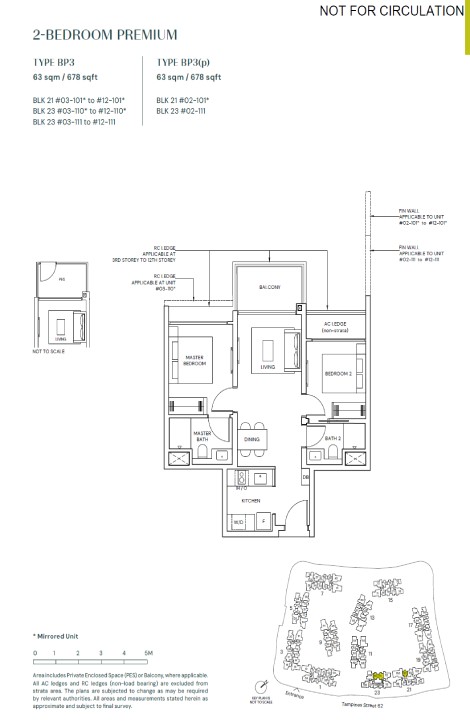
2 Bedroom Premium292678 to 721
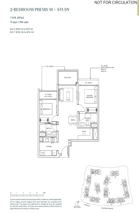
2 Bedroom Premium + Study134674
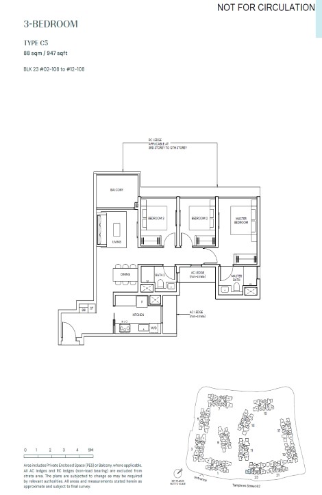
3 Bedroom135926 to 947
3 Bedroom Premium1581,055 to 1,076
3 Bedroom Preminium + Study1151,163 to 1,184
4 Bedroom571,335 to 1,356
4 Bedroom Premium471,485 to 1,496
5 Bedroom221,679

Maintenance Fees

UNIT TYPESSHARE VALUEEST. MAINTENANCE FEES
1 Bedroom + StudyTBC$362
2 BedroomTBC$442
2 Bedroom PremiumTBC$442
2 Bedroom Premium + StudyTBC$442
3 BedroomTBC$442
3 Bedroom PremiumTBC$442
3 Bedroom Premium + StudyTBC$514
4 Bedroom PremiumTBC$514
5 BedroomTBC$587

Get Brochure, Floor Plan and Price List via Inquiry Form below for Parktown Residence,

Developers' Background of Parktown Residence

UOL Group Limited

UOL Group Limited is one of Singapore’s most reputable and established public-listed property companies with a distinguished history of delivering high-quality developments across residential, commercial, and hospitality sectors. Renowned for its unwavering commitment to architectural excellence and superior product quality, UOL Group Limited has built a robust portfolio of prestigious properties that reflect timeless design and enduring value. With a business philosophy deeply rooted in the pursuit of excellence and integrity, UOL has consistently delivered iconic residential condominiums, luxurious landed homes, and prime commercial spaces that cater to the evolving needs of modern urban dwellers and astute investors.

UOL Group Limited’s residential developments are highly sought after for their strategic locations, innovative designs, and exceptional finishing standards. The company has successfully launched award-winning projects in prime districts and fast-growing suburban areas, offering a wide selection of unit types to meet diverse lifestyle preferences and investment objectives. In addition to residential properties, UOL Group Limited has an extensive commercial portfolio comprising Grade A office towers and retail complexes located in Singapore’s key business hubs, providing stable recurring income and enhancing the Group’s long-term value proposition.

As a key player in the hospitality sector, UOL Group Limited owns and manages a distinguished collection of hotels under its wholly-owned subsidiary Pan Pacific Hotels Group, which operates globally recognized brands such as “Pan Pacific” and “PARKROYAL.” This strong hospitality arm enhances UOL’s international presence while reinforcing its brand recognition in the global real estate arena. UOL is also known for its active participation in the Government Land Sales (GLS) program, securing prime land parcels for future development to ensure a continuous pipeline of exciting new projects.

Driven by a steadfast commitment to sustainability and corporate responsibility, UOL Group Limited integrates green building practices and eco-friendly initiatives across its developments, aligning with Singapore’s vision for a greener and more sustainable urban environment. With a proven track record of delivering value to stakeholders and a forward-looking approach to property development, UOL Group Limited continues to set industry benchmarks and remains a trusted name synonymous with quality, innovation, and long-term investment potential in the Singapore property market.

Singapore Land Group Limited

Singapore Land Group Limited (SingLand) is a premier real estate company in Singapore, renowned for its legacy of delivering high-quality residential, commercial, and mixed-use developments. As a distinguished property developer with decades of experience, SingLand has built a stellar reputation for its commitment to architectural excellence, innovation, and sustainability.

The company, formerly known as United Industrial Corporation Limited, underwent a strategic rebranding to Singapore Land Group Limited, reflecting its sharpened focus on redefining the urban landscape of Singapore. SingLand boasts an impressive portfolio of landmark properties, including Grade A office towers in the Central Business District such as Singapore Land Tower, Clifford Centre, and Marina Square, along with prestigious residential developments in prime districts that continue to set benchmarks for luxury living.

With a diversified real estate business, SingLand plays a pivotal role in shaping Singapore’s skyline through its involvement in integrated developments, premium retail spaces, and world-class hospitality assets. The company’s forward-looking vision is deeply anchored in delivering sustainable urban spaces that cater to the evolving needs of modern homeowners, businesses, and investors.

Guided by strong corporate governance and backed by the robust financial strength of its parent company UOL Group Limited, Singapore Land Group Limited remains at the forefront of Singapore’s real estate sector, consistently creating enduring value and enriching the built environment.

CapitaLand Group

CapitaLand is one of Asia’s largest and most reputable diversified real estate groups, with a robust global portfolio spanning across real estate investment, development, and management. Headquartered in Singapore, CapitaLand has built a strong presence in over 260 cities across more than 40 countries, with a primary focus in Asia-Pacific and an expanding footprint in key global markets. The company is well-regarded for its leadership in integrated developments, retail, commercial, lodging, industrial, logistics, and residential properties, supported by a suite of real estate investment trusts (REITs) and private funds that collectively offer a resilient and capital-efficient business model.

CapitaLand’s core philosophy revolves around creating quality spaces for work, life, and play, underpinned by sustainability, digital innovation, and community-centric values. In Singapore, CapitaLand has delivered iconic developments such as Raffles City, Jewel Changi Airport, Funan, and CapitaSpring, reinforcing its reputation as a trusted developer that blends functionality with architectural excellence. Its residential arm continues to lead the market with highly sought-after condominiums and mixed-use projects that cater to evolving urban lifestyles and family needs.

Driven by ESG principles and digital transformation, CapitaLand is committed to achieving long-term sustainable growth. The company’s 2030 Sustainability Master Plan outlines ambitious goals in reducing carbon emissions, enhancing operational efficiency, and fostering inclusive developments that benefit both communities and stakeholders. Through CapitaLand Investment (CLI), the group manages a globally diversified portfolio worth over S$130 billion in real estate assets under management, including well-established REITs such as CapitaLand Integrated Commercial Trust (CICT), CapitaLand Ascendas REIT, and CapitaLand China Trust.

As a pioneer in Singapore’s real estate landscape, CapitaLand remains a driving force in shaping skylines and enriching lives, delivering consistent value to homeowners, investors, and partners through its holistic approach to design, innovation, and sustainability. With its proven track record and forward-looking strategies, CapitaLand continues to play a central role in transforming urban living and setting new benchmarks in the global real estate industry.

Parktown-Residence-Swimming-Pool

Register Now To Schedule An Viewing Appointment.

Don't miss out on the opportunity to own a unit at Parktown Residences

Register your interest today and be among the first to receive updates for this exciting new launch.

Parktown-Residence-BBQ-Pavilion

Frequently Asked Questions (FAQ) about Parktown Residence

Parktown Residence a landmark new development by UOL Group, SingLand and CapitaLand Group.

Parktown Residence is a mixed-use development.

Parktown Residence is a 99 year leasehold mixed-use development.

The address of Parktown Residence is at Tampines St 62.

Parktown Residence is located in District 18.

Parktown Residence estimated TOP is Jun 2030.

Parktown Residence has a estimated total of 1,193 residential units.

Parktown Residence has a units mix of 1+Study Bedroom to 5 Bedroom layouts.

Parktown Residence has direct access to Tampines North MRT station of the Cross Island Line.

Angsana Primary School and Meridian Primary School are both within 1Km to Parktown Residence.

Inquiry Form

Send us your inquiry and we will get back to you as soon as possible.
Parktown Residences Inquiry
Unit type that you are interested?
Are you a property owner?
Are you aware that Singaporeans purchasing second properties are subject to a 20% ABSD?
Would you like to view the Showflat during Preview?
Like to receive Brochure once available?
Like to receive Guide Price once available?
Like to have free financial consultation on progressive payment scheme.

Explore the Latest New Launch Condos in Singapore

At SgPropertyPools, we bring you curated updates on the most attractive new launch condominium developments across Singapore. Whether you're an HDB upgrader, a first-time private home buyer, or a seasoned investor, our listings are carefully selected to help you make the right property decision.

Visit our New Launch Projects at homepage to explore detailed reviews, floor plans, pricing insights, and exclusive VVIP previews for exciting developments islandwide including OCR, RCR, and CCR locations. From family-friendly layouts to investor-worthy properties near MRT stations, SgPropertyPools covers the full spectrum of today’s top residential launches.

Stay ahead of the market. Let us help you find your ideal unit in the right location—with the best value and upside potential.

Visit SgPropertyPools New Launch Projects for other new launches!

Latest Launches